Package Include
Hitachi AH500D 6×6 Articulated Dump Truck Technical Manual
Language
English
Format
PDF
Total Number of pages
756
Publication Number
KM-8TJ-E
Compatible
All windows and mac systems
Additional Requirement
User needs to Install PDF Reader Software
Shipping Policy
Download link by high speed web server Total Download size 23 mb
Compatible Model : HItachi AH500D 6×6 [ 412850 ]
The Hitachi AH500D 6×6 Articulated Dump Truck Technical Manual is the official OEM resource for technicians, mechanics, and fleet maintenance professionals tasked with servicing and maintaining this high-performance heavy-duty machine. Covering every major system and component, this manual provides the detailed procedures, diagrams, and technical data needed for accurate diagnostics and efficient repair.
Machine Coverage:
-
Model: Hitachi AH500D
-
Configuration: 6×6 Articulated Dump Truck
Manual Type:
-
OEM Technical / Service Manual
-
Format: PDF or Print (depending on provider)
-
Language: English
Manual Contents Include:
-
Full technical specifications and torque data
-
Engine, transmission, and drivetrain servicing
-
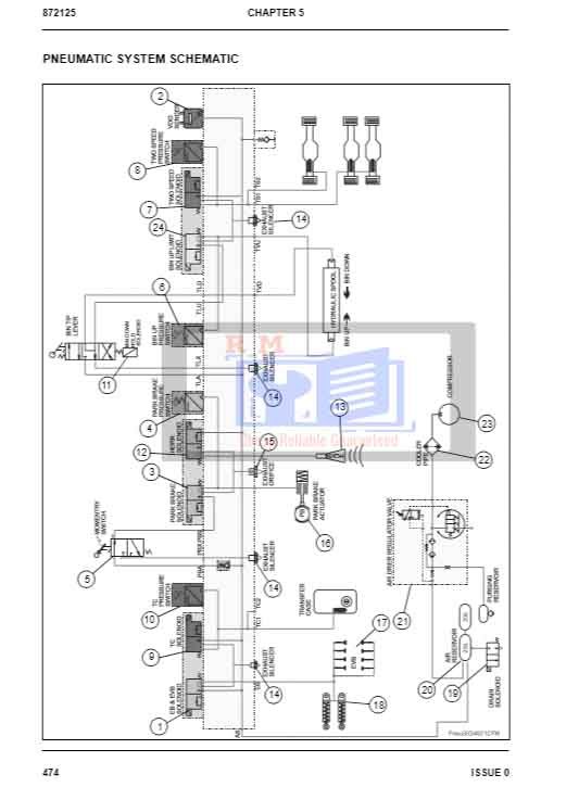
Hydraulic system operation and diagnostics
-
Electrical system schematics and troubleshooting
-
Brake system inspection and repair
-
Cab controls, operator interface, and safety systems
-
Scheduled maintenance procedures
-
Fault code diagnostics and troubleshooting guides
Key Benefits:
-
Official Hitachi factory documentation
-
Ideal for routine maintenance, system troubleshooting, or complete overhauls
-
Step-by-step instructions with detailed diagrams
-
Prevents costly downtime and repair errors
Whether you’re managing a fleet or maintaining a single unit, the Hitachi AH500D Technical Manual is your complete guide to keeping the machine operating safely, efficiently, and reliably in the toughest working conditions.








