Hyundai HL760-9A Wheel Loader Service Repair Manual

Guaranteed Safe Checkout

$10.00

68 people bought this product

Package Include
Hyundai HL760-9A Wheel Loader Service Repair Manual

Language
English

Format
PDF

Total Number of pages
614

Compatible
All windows and mac systems

Additional Requirement
User needs to Install PDF Reader Software

Shipping Policy
Download link by high speed web server Total Download size 53 mb

With This Original Factory Service Repair Manual The Technician can Find and Solve any problems encountered in the operation of your Hyundai Wheel Loader Models of :

Compatible With : Hyundai HL760-9A Wheel Loader

The Hyundai HL760-9A Wheel Loader Service Repair Manual is an essential resource for any technician or DIY enthusiast looking to maintain and repair their equipment efficiently. This comprehensive guide provides detailed instructions, diagrams, and troubleshooting tips, ensuring you have all the information needed to keep your wheel loader in optimal condition. With its user-friendly format, you can easily navigate through complex procedures, saving time and reducing downtime on the job. Invest in this manual to enhance your repair skills and ensure the longevity of your Hyundai HL760-9A Wheel Loader

This service manual has been prepared as an aid to improve the quality of repairs by giving the
serviceman an accurate understanding of the product and by showing him the correct way to
perform repairs and make judgements. Make sure you understand the contents of this manual and use it to full effect at every opportunity.
This service manual mainly contains the necessary technical information for operations performed in a service workshop.

For ease of understanding, the manual is divided into the following sections.

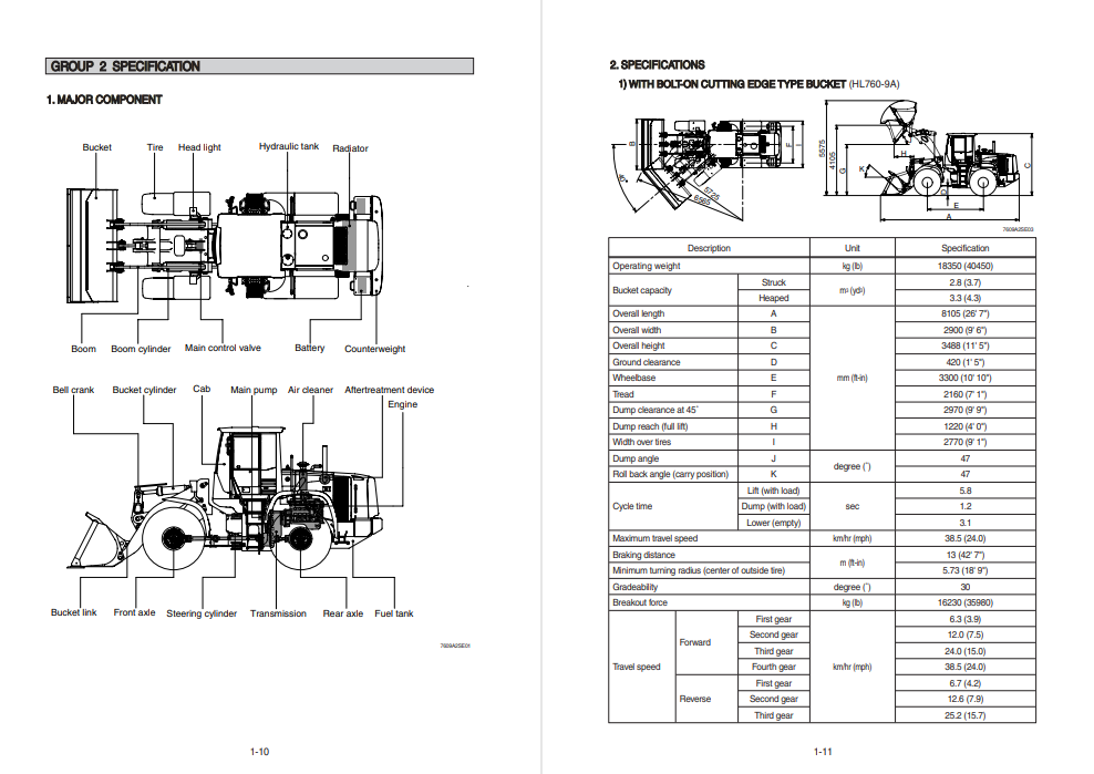
Structure and function
This group explains the structure and function of each component. It serves not only to give an
understanding of the structure, but also serves as reference material for troubleshooting.

Operational checks and troubleshooting
This group explains the system operational checks and troubleshooting charts correlating problem to remedy.

Tests and adjustments
This group explains checks to be amide before and after performing repairs, as well as adjustments
to be made at completion of the checks and repairs.

Disassembly and assembly
This group explains the order to be followed when removing, installing, disassembling or assembling
each component, as well as precautions to be taken for these operations.

Contents of this pdf manual

SECTION 1 GENERAL
Group 1 Safety Hints
Group 2 Specifications
Group 3 Operational Checkout Record Sheet

SECTION 2 ENGINE
Group 1 Structure and Function
Group 2 Fuel warmer system
Group 3 Engine speed and Stall rpm
Group 4 Fan drive circuit for cooling system

SECTION 3 POWER TRAIN SYSTEM
Group 1 Structure and Function
Group 2 Operational Checks and Troubleshooting
Group 3 Test and Adjustments
Group 4 Disassembly and Assembly

SECTION 4 BRAKE SYSTEM
Group 1 Structure and Function
Group 2 Operational Checks and Troubleshooting
Group 3 Tests and Adjustments
Group 4 Disassembly and Assembly

SECTION 5 STEERING SYSTEM
Group 1 Structure and Function
Group 2 Operational Checks and Troubleshooting
Group 3 Tests and Adjustments
Group 4 Disassembly and Assembly

SECTION 6 WORK EQUIPMENT
Group 1 Structure and Function
Group 2 Operational Checks and Troubleshooting
Group 3 Tests and Adjustments
Group 4 Disassembly and Assembly

SECTION 7 ELECTRICAL SYSTEM
Group 1 Component Location
Group 2 Electrical Circuit
Group 3 Monitoring System
Group 4 Electrical Component Specification
Group 5 Connectors
Group 6 Troubleshooting

𝙊𝙫𝙚𝙧 25 𝙮𝙚𝙖𝙧𝙨 𝙤𝙛 𝙨𝙚𝙧𝙫𝙞𝙘𝙚 𝙬𝙞𝙩𝙝 𝙖 100% 𝙨𝙖𝙩𝙞𝙨𝙛𝙖𝙘𝙩𝙞𝙤𝙣 𝙜𝙪𝙖𝙧𝙖𝙣𝙩𝙚𝙚

Concerning ourselves and our vision  100% customer satisfaction, after-sale support, and maintaining contact with our regular clients are our goals.

Until you download it and save it in a secure location Since we sincerely care about you and try our best to accommodate your demands, your feedback is essential to our efforts to improve our services.

What we provide to our clients  Original factory service manuals, repair manuals, workshop manuals, parts manuals, technical manuals, operator’s manuals, owner manuals, electrical diagrams, hydraulic diagrams, and many other instructions for the heavy mechanic industry are available here.

𝙾𝚟𝚎𝚛 𝟑𝟻,𝟶𝟶𝟶 𝚌𝚞𝚜𝚝𝚘𝚖𝚎𝚛𝚜 𝚑𝚊𝚟𝚎 𝚏𝚊𝚒𝚝𝚑 𝚒𝚗 𝚘𝚞𝚛 𝚜𝚎𝚛𝚟𝚒𝚌𝚎. 𝚆𝚎 𝚟𝚊𝚕𝚞𝚎 𝚢𝚘𝚞𝚛 𝚋𝚞𝚜𝚒𝚗𝚎𝚜𝚜 𝚊𝚗𝚍 𝚊𝚛𝚎 𝚐𝚛𝚊𝚝𝚎𝚏𝚞𝚕 𝚝𝚑𝚊𝚝 𝚢𝚘𝚞 𝚑𝚊𝚟𝚎 𝚌𝚑𝚘𝚜𝚎𝚗  𝚠𝚠𝚠.𝚛𝚎𝚙𝚊𝚒𝚛-𝚖𝚊𝚗𝚞𝚊𝚕𝚜.𝚌𝚘𝚖

Service Repair Manual for Hyundai HL760-9A Wheel Loader, showcasing detailed diagrams and maintenance instructionsHyundai HL760-9A Wheel Loader Service Repair Manual
$10.00 68 people bought this product
Scroll to Top