Package Include
Hyundai R16-9 Mini Excavator Service Repair Manual
Language
English
Format
PDF
Total Number of pages
403
Compatible
All windows and mac systems
Additional Requirement
User needs to Install PDF Reader Software
Shipping Policy
Download link by high speed web server Total Download size 27 mb
With This Original Factory Service Repair Manual The Technician can Find and Solve any problems encountered in the operation of your Hyundai Excavator Models of :
Hyundai R16-9 Mini Excavator [Hyundai Robex Excavator]
The Hyundai R16-9 Mini Excavator Service Repair Manual is an essential resource for maintaining and repairing your equipment efficiently. This comprehensive guide provides detailed instructions, diagrams, and troubleshooting tips to ensure optimal performance and longevity of your mini excavator. With clear, step-by-step procedures, you can confidently tackle repairs and maintenance tasks, saving time and reducing downtime on the job. Invest in this manual to enhance your operational efficiency and keep your Hyundai R16-9 running smoothly
The manual is divided into the following chapters:
GENERAL
Safety hints
Specifications
STRUCTURE AND FUNCTION
Pump device
Main control valve
Swing device
Travel device
RCV Lever
RCV Pedal
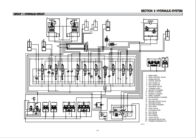
HYDRAULIC SYSTEM
Hydraulic circuit
Main circuit
Pilot circuit
Single operation
Combined operation
ELECTRICAL SYSTEM
Component location
Monitoring system
Electrical circuit
Electrical component specification
Connectors
TROUBLESHOOTING
Before troubleshooting
Hydraulic and mechanical system
Electrical system
MAINTENANCE STANDARD
Operational performance test
Major components
Track and work equipment
DISASSEMBLY AND ASSEMBLY
Precaution
Tightening torque
Pump device
Main control valve
Swing device
Travel device
RCV lever
Turning joint
Boom, arm and bucket cylinder
Undercarriage
Work equipment
COMPONENT MOUNTING TORQUE
Introduction guide
Engine system
Electric system
Hydraulic system
Undercarriage
Structure
Work equipment






