Package Include
JCB 8027Z, 8032Z Mini Excavator Service Repair Manual
Language
English
File Format
PDF
Total Number of pages
216
Publication Number
9803-9300
Compatible
All windows and mac systems
Additional Requirement
User needs to Install PDF Reader Software
Shipping Policy, Instant download, No waiting
Download link by high speed web server Total Download size 17 mb
With This Original Factory Service Repair Manual The Technician can Find and Solve any problems encountered in the operation of your JCB Excavator Models of :
Compatible Machine Model :
JCB 8027Z Mini Excavator
JCB 8032Z Mini Excavator
Contents Of This PDF Manual
General Information
Care & Safety
Routine Maintenance
Optional Equipment
Body & Framework
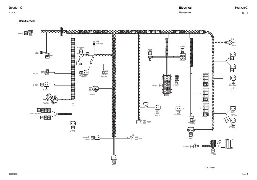
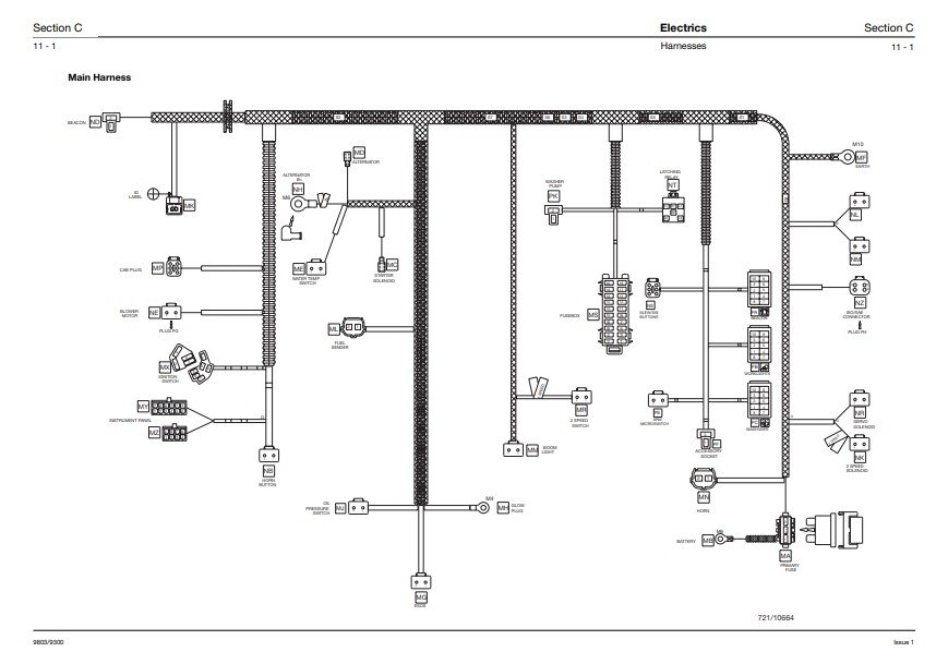
Electrics
Controls
Hydraulics
Transmission
Track & Running Gear
Engine









gsmfdo@gmail.com
Thanks for good price
Very good A Service , fast search results