Product Code KMBL 0013 [ After payment, this Code helps to receive correct download password to your Account Dashboard ]
Package Include
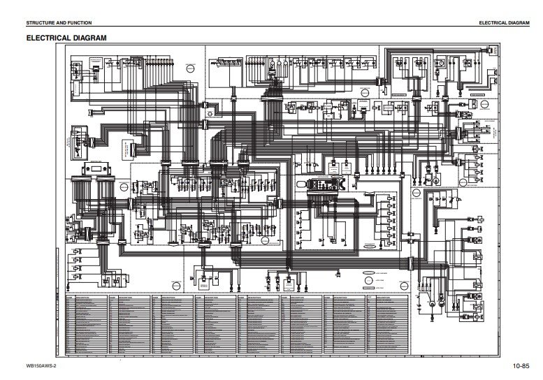
Komatsu WB150AWS-2 Italy Backhoe Loader Workshop Manual
Language
English
Format
PDF
Total Number of pages
1-512
Publication Number
WEBD003301
Compatible
All windows and mac systems
Additional Requirement
User needs to Install PDF Reader Software
Shipping Policy
Download link by high speed web server Total Download size 15 mb
With This Original Factory Workshop Manual The Technician can Find and Solve any problems encountered in the operation of your Komatsu Backhoe Loader Models of :
WB150AWS-2 Italy [S.N 150F80001 and UP]
[This is true Electronic pdf copy with contains high quality images and diagrams, not scanned version]
CONTENTS OF THIS WORKSHOP MANUAL
STRUCTURE AND FUNCTION
TESTING AND ADJUSTING
DISASSEMBLY AND ASSEMBLY
MAINTENANCE STANDARD








